高槻市 山手町1丁目 新築一戸建ての物件情報はプレミア不動産販売

営業時間/10:00~19:00
定休日/水曜日・第一、第三火曜日
0120-01-6668
高槻市 山手町1丁目 新築一戸建て

高槻市 中古マンション高槻市 山手町1丁目 新築一戸建て

高槻市 山手町1丁目 新築一戸建ての情報はプレミア不動産販売

こちらの物件は現在商談中です。

〔物件ID〕 0000017817
  • 新築戸建
  • 値下げ
4,390 万円
所在地 大阪府高槻市山手町1丁目
交通 阪急京都線「高槻市」駅 バス15分/停歩2分
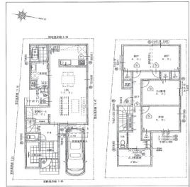
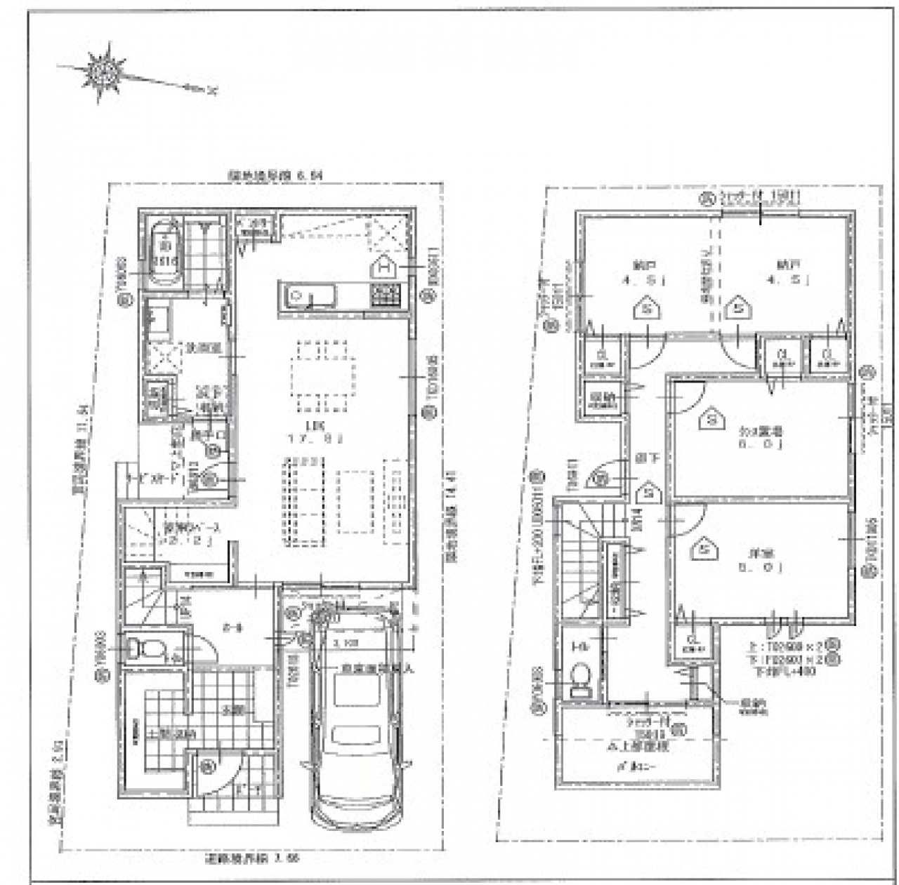
建築面積 110.35m2 (33.38坪)
土地面積 103.39m2 (31.27坪)
築年月 2025年07月(令和7年07月)
間取り 3LDK
高槻市 山手町1丁目 新築一戸建ての物件写真
高槻市 山手町1丁目 新築一戸建てのMAP・周辺環境
高槻市 山手町1丁目 新築一戸建ての物件概要
所在地 大阪府高槻市山手町1丁目
交通 阪急京都線「高槻市」駅 バス15分/停歩2分
価格 4,390万円
小学校区---中学校区---
建物面積 110.35m2(33.38坪) 土地面積 103.39m2(31.27坪)
間取り 3LDK 構造 木造
築年月 2025年07月(令和7年07月) 総戸数 ---
土地権利 所有権 地目 宅地
私道負担/私道面積 --- セットバック/距離/面積 ---
都市計画 市街 用途地域 一中
建ぺい率 60% 容積率 200%
接道状況 一方
方向:東      種別:公道      幅員:4.7m      間口:7.6m
駐車場 駐車場料金 ---
その他使用料 ---
現況 未完成 引渡 相談
取引態様 仲介 国土法届出 ---
設備 ---
コメント ---
更新日 2026年02月12日 次回更新予定日 2026年02月26日
価格変更履歴
2025年11月16日

4,540万円

4,390万円

ローンシミュレーション
自己資金 万円
※別途、諸費用が必要です。
ローン借入額 万円
内ボーナス時支払い 万円
※ボーナス返済月の加算額ではありません。
※お借入れ予定額の50%以下の金額をご入力ください。
金利
返済年数
  • 月々(毎月返済額)
  • 0
  • ボーナス(ボーナス時加算額)
  • 0

物件情報と現況に差異がある場合、現況を優先します。
掲載物件は売却済み、売却中止、価格変更となる場合がありますので、予めご了承ください。
仲介物件には所定の仲介手数料(消費税含む)が必要です。

株式会社プレミア不動産販売
会社名 株式会社プレミア不動産販売
所在地 〒569-0013
高槻市野田二丁目4番3-102号
交通 阪急高槻市駅
TEL 072-668-3744
FAX 072-668-3748
ホームページHP https://www.premier-f.co.jp/
メールアドレスE-MAIL info@premier-f.co.jp
免許番号 大阪府知事免許(2)第61910号
営業時間 9:00~19:00
定休日 毎週水曜日
物件を探す ×
物件種別
エリア
価格
建物面積
土地面積
専有面積
間取り
駅徒歩
築年数
こだわり条件
無料会員登録非公開物件ご覧いただけます!
会員登録で
物件数が大幅アップ!

公開物件 97

公開物件+
非公開物件
1,867

現在の会員数115

  • 会員登録は無料!
  • 会員専用マイページを作成!
  • 希望条件に合う新着・価格変更物件をメール配信!
  • 非公開物件が閲覧可能!
  • 他社にはない特別限定物件のご紹介チャンスあり!